- Ti trovi in:
- Home ›
- Immobili ›
- Trentola-Ducenta ›
- Vendita ›
- Villette a schiera ›
- Villette a schiera in vendita a Trentola-Ducenta
Villette a schiera in vendita a Trentola-Ducenta
Nel cuore di Trentola Ducenta (CE), a pochi passi dal Gallery e confinante con Aversa, proponiamo la Vendita di una splendida villa a schiera di nuova costruzione (2026), ideale per chi desidera vivere in un ambiente moderno, funzionale e ben collegato.
La soluzione sarà sviluppata su 3 livelli.
Il piano terra di 170 mq circa disporrà di un accogliente porticato con cortile privato, perfetto per momenti di relax e tranquillità all'aperto, ed a completare il tutto verrà realizzata una piscina interrata.
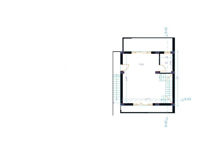
Al primo piano, troveremo la zona giorno di 55 mq circa il quale ospiterà un soggiorno con cucina living, ideale per chi ama gli ambienti open space, bagno con doccia e balconi su due lati.
Al secondo ed ultimo piano anch'esso di 55 mq circa troveremo la zona notte, che sarà composta da una matrimoniale spaziosa, due soleggiate camerette, un secondo bagno con doccia e balconi su tre lati.
Gli infissi saranno realizzati in PVC/Doppio vetro camera, disporrà di napoletane in ferro, riscaldamento a pavimento e predisposizione di climatizzatori ed antifurto, inoltre essendo ancora in corso di costruzione vi è la possibilità di chiedere ulteriori personalizzazioni in base ai propri gusti ed esigenze personali.
Infine l'immobile sarà consegnato con impianto fotovoltaico già installato.
Consegna prevista Dicembre 2026.
Posto auto coperto.
Classe energetica APE A.
Situata in una zona centrale e ben servita, la villa offre comodità e vicinanza ai principali servizi.
Che aspetti! Contattaci subito.
I metri quadrati complessivi, indicati nella presente offerta pubblicitaria, sono calcolati tenendo in considerazione tutte le superfici interne ed esterne dell'immobile con relative pertinenze annesse, adottando i parametri classici per una stima sintetica comparativa come utilizzato nel DPR 138 DEL 23 MARZO 1998.
